Schicke 4-Raum-Wohnung * Geiseltal * Balkon *Erdgeschoss (12787)
Goethestraße
60 |
06242
Braunsbedra
Deutschland
Braunsbedra
Etage:
EG
Etagenanzahl:
4
Kaltmiete:
486,00 €
Warmmiete:
736,00 €
Nebenkosten:
125,00 €
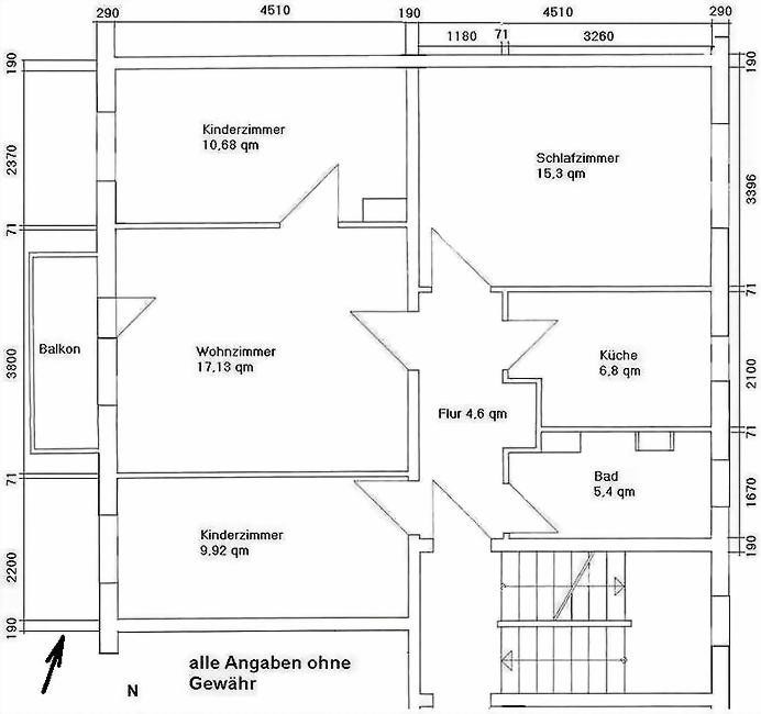
Wohnfläche ca.:
69.38 m²
Zimmer:
4
Schlafzimmer:
3
Badezimmer:
1
Objektinformationen
Kaltmiete:
486,00 €
Warmmiete:
736,00 €
Nebenkosten:
125,00 €
Heizkosten:
125,00 €
Kaution:
972,00 €
Wohnfläche ca.:
69,38 m²
Zimmer:
4,0
Schlafzimmer:
3
Badezimmer:
1
Balkone:
1
Ausstattung
Badewanne
✓
Fliesenboden
✓
Linoleumboden
✓
Fernwärme
✓
Zustand
Baujahr:
1967
Energieeffizienzklasse
C
Energiepass
Energiepass Art:
Verbrauch
gültig bis:
11-2028
Verbrauchkennwert:
83.00 kWh/(m²a)
mit Warmwasser
✓
Primärenergieträger:
Fernwärme
Energieeffizienzklasse:
C
Verwaltung
verfügbar ab
01.07.2026
Objektbeschreibung
Braunsbedra im Geiseltal ist eine attraktive Stadt in Sachsen-Anhalt, die sich durch ihre Lage am Geiseltalsee und ihre vielfältigen Vorzüge auszeichnet:
- Braunsbedra liegt malerisch am Ufer des Geiseltalsees, einem der größten künstlichen Seen Deutschlands. Dieser See bietet nicht nur eine atemberaubende Kulisse, sondern auch zahlreiche Möglichkeiten für Wassersport, Angeln und Erholung.
- Die Umgebung von Braunsbedra ist von grünen Wäldern sowie drei weiteren Seen (Hasse See, Großkaynaer See & Runstedter See) umgeben, die zum Wandern, Radfahren und Picknicken einladen.
- Braunsbedra liegt verkehrsgünstig an der Autobahn A38, was den Zugang zu größeren Städten wie Halle (Saale) und Leipzig erleichtert. Auch öffentliche Verkehrsmittel sind gut ausgebaut.
- Die Stadt bietet eine Vielzahl von Einkaufsmöglichkeiten und Restaurants, um den täglichen Bedarf zu decken und kulinarische Vielfalt zu genießen.
- Braunsbedra verfügt über Kindergärten, Grundschulen und eine weiterführende Schule.
- Braunsbedra liegt malerisch am Ufer des Geiseltalsees, einem der größten künstlichen Seen Deutschlands. Dieser See bietet nicht nur eine atemberaubende Kulisse, sondern auch zahlreiche Möglichkeiten für Wassersport, Angeln und Erholung.
- Die Umgebung von Braunsbedra ist von grünen Wäldern sowie drei weiteren Seen (Hasse See, Großkaynaer See & Runstedter See) umgeben, die zum Wandern, Radfahren und Picknicken einladen.
- Braunsbedra liegt verkehrsgünstig an der Autobahn A38, was den Zugang zu größeren Städten wie Halle (Saale) und Leipzig erleichtert. Auch öffentliche Verkehrsmittel sind gut ausgebaut.
- Die Stadt bietet eine Vielzahl von Einkaufsmöglichkeiten und Restaurants, um den täglichen Bedarf zu decken und kulinarische Vielfalt zu genießen.
- Braunsbedra verfügt über Kindergärten, Grundschulen und eine weiterführende Schule.
Ausstattung
Bad mit Badewanne, Balkon, PKW-Stellplatz möglich, wenn verfügbar
Die sanierte, helle sowie freundliche 4-Raumwohnung besitzt einen ansprechenden Grundriss und befindet sich im Erdgeschoss eines gepflegten Mehrfamilienhauses.
Sie besitzt folgende Ausstattungsmerkmale:
- tapeziert mit Raufasertapete
- schöner Balkon
- praktische Abstellnische für diverse Haushaltsgegenstände im Flur
- modernes Tageslichtbad mit Badewanne
- Küche mit Fliesenspiegel
- neuer moderner PVC-Belag in allen Räumen
- Highspeed-Internet (bis zu 1000 Mbit/s) verfügbar
- PKW-Stellplatz möglich, wenn verfügbar
Das Beispielbild zeigt eine vergleichbare Wohnung.
Gerne stehen wir Ihnen für Fragen und einen Besichtigungstermin zur Verfügung.
Die sanierte, helle sowie freundliche 4-Raumwohnung besitzt einen ansprechenden Grundriss und befindet sich im Erdgeschoss eines gepflegten Mehrfamilienhauses.
Sie besitzt folgende Ausstattungsmerkmale:
- tapeziert mit Raufasertapete
- schöner Balkon
- praktische Abstellnische für diverse Haushaltsgegenstände im Flur
- modernes Tageslichtbad mit Badewanne
- Küche mit Fliesenspiegel
- neuer moderner PVC-Belag in allen Räumen
- Highspeed-Internet (bis zu 1000 Mbit/s) verfügbar
- PKW-Stellplatz möglich, wenn verfügbar
Das Beispielbild zeigt eine vergleichbare Wohnung.
Gerne stehen wir Ihnen für Fragen und einen Besichtigungstermin zur Verfügung.
Ihr Ansprechpartner
GW Geiseltaler Wohnungsgesellschaft mbH
Eduard-Dörge-Platz 7
06242 Braunsbedra
Deutschland
E-Mail (zentral)
Telefon
034633 9099-99