Gemütliche 3-Raumwohnung mit Balkon im Geiseltal (11359)
H.-Heine-Straße
19 |
06242
Braunsbedra
Deutschland
Braunsbedra
Etage:
3. OG
Kaltmiete:
337,00 €
Warmmiete:
545,00 €
Nebenkosten:
98,00 €
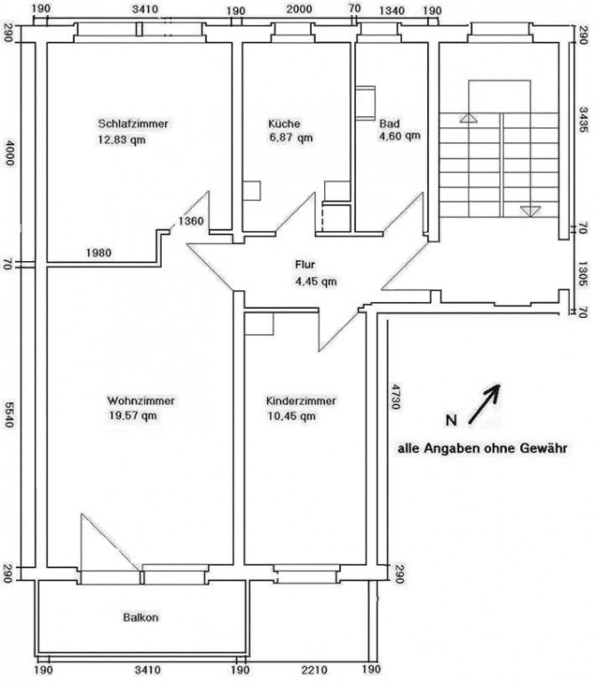
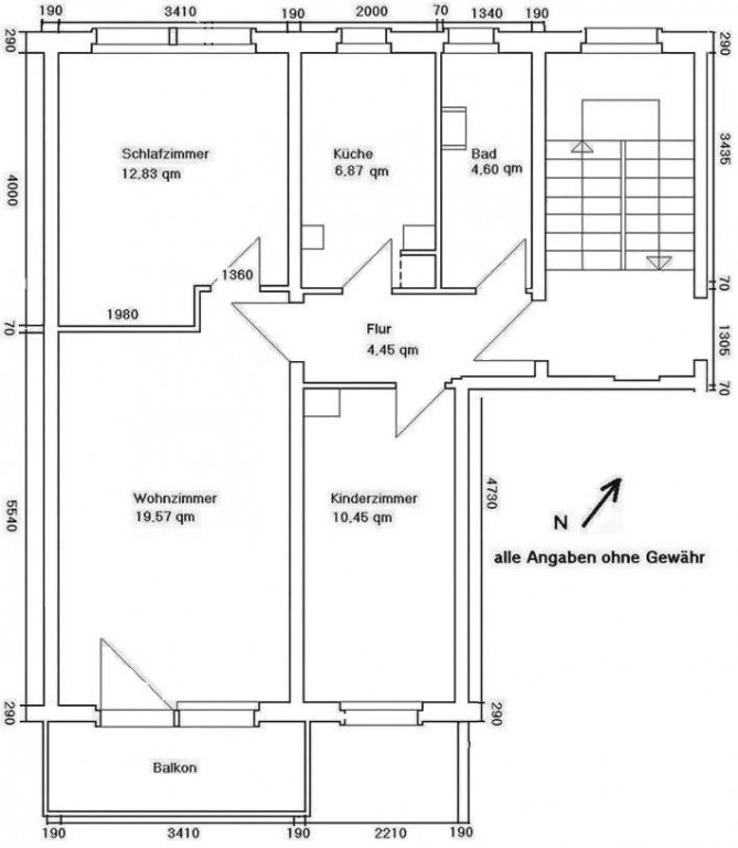
Wohnfläche ca.:
61.1 m²
Zimmer:
3
Schlafzimmer:
2
Badezimmer:
1
Objektinformationen
Kaltmiete:
337,00 €
Warmmiete:
545,00 €
Nebenkosten:
98,00 €
Heizkosten:
110,00 €
Kaution:
736,00 €
Wohnfläche ca.:
61,10 m²
Zimmer:
3,0
Schlafzimmer:
2
Badezimmer:
1
Balkone:
1
Ausstattung
Badewanne
✓
Fliesenboden
✓
Linoleumboden
✓
Fernwärme
✓
Zustand
Baujahr:
1968
Energieeffizienzklasse
C
Energiepass
Energiepass Art:
Bedarf
gültig bis:
11-2028
Verbrauchkennwert:
86.00 kWh/(m²a)
mit Warmwasser
✓
Endenergiebedarf:
0.00 kWh/(m²a)
Primärenergieträger:
Fernwärme
Energieeffizienzklasse:
C
Verwaltung
verfügbar ab
sofort
Objektbeschreibung
Die Gemeinde Braunsbedra im Geiseltal bietet mit ihren 4 Seen (Geiseltalsee, Hasse See, Großkaynaer See und Runstedter See) ein sehr attraktives Wohnumfeld.
Ihre neue Wohnung befindet sich im Herzen der Stadt und viele Geschäfte des täglichen Bedarfs sind fußläufig zu erreichen.
Ihre neue Wohnung befindet sich im Herzen der Stadt und viele Geschäfte des täglichen Bedarfs sind fußläufig zu erreichen.
Ausstattung
Bad mit Badewanne, Balkon, PKW-Stellplatz möglich, wenn verfügbar
Die sanierte 3-Raumwohnung befindet sich in der 3. Etage eines Mehrfamilienhauses und besitzt folgende Ausstattungsmerkmale:
- ohne Tapete, auf Wunsch wird die Wohnung auch malermäßig instandgesetzt (Grundmiete zzgl. 0,50 €/m²/Monat)
- schöner Balkon mit Blick ins Grüne
- Highspeed-Internet (bis zu 1000 Mbit/s) möglich
- modernes Bad mit Wanne
- Küche mit Fliesenspiegel
- aktuell wird moderner PVC-Belag in allen Räumen neu verlegt
Die Beispielbilder zeigen eine vergleichbare Wohnung.
Gerne stehen wir Ihnen für Fragen und einen Besichtigungstermin zur Verfügung.
Die sanierte 3-Raumwohnung befindet sich in der 3. Etage eines Mehrfamilienhauses und besitzt folgende Ausstattungsmerkmale:
- ohne Tapete, auf Wunsch wird die Wohnung auch malermäßig instandgesetzt (Grundmiete zzgl. 0,50 €/m²/Monat)
- schöner Balkon mit Blick ins Grüne
- Highspeed-Internet (bis zu 1000 Mbit/s) möglich
- modernes Bad mit Wanne
- Küche mit Fliesenspiegel
- aktuell wird moderner PVC-Belag in allen Räumen neu verlegt
Die Beispielbilder zeigen eine vergleichbare Wohnung.
Gerne stehen wir Ihnen für Fragen und einen Besichtigungstermin zur Verfügung.
Ihr Ansprechpartner
GW Geiseltaler Wohnungsgesellschaft mbH
Eduard-Dörge-Platz 7
06242 Braunsbedra
Deutschland
E-Mail (zentral)
Telefon
034633 9099-99