Willkommen im Geiseltal - Schöne 3-Raumwohnung (11493)
H.-Heine-Straße
13 |
06242
Braunsbedra
Deutschland
Braunsbedra
Etage:
1. OG
Etagenanzahl:
2
Kaltmiete:
473,00 €
Warmmiete:
675,00 €
Nebenkosten:
95,00 €
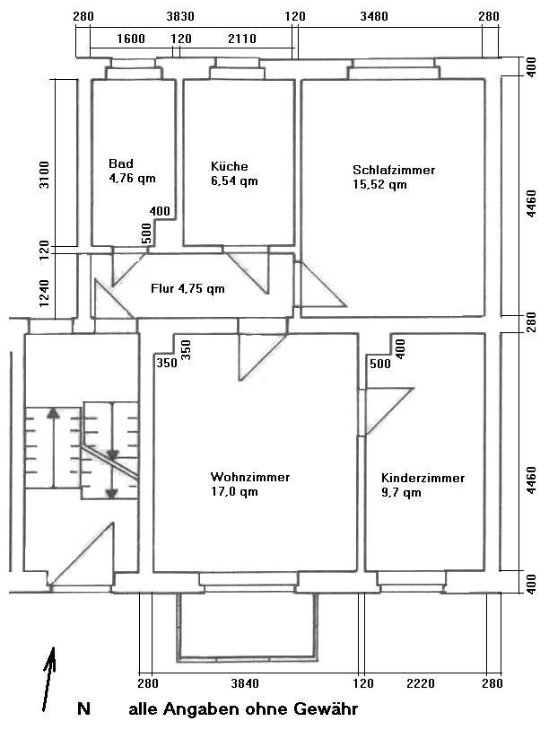
Wohnfläche ca.:
59 m²
Zimmer:
3
Schlafzimmer:
2
Badezimmer:
1
Objektinformationen
Kaltmiete:
473,00 €
Warmmiete:
675,00 €
Nebenkosten:
95,00 €
Heizkosten:
107,00 €
Kaution:
946,00 €
Wohnfläche ca.:
59,00 m²
Zimmer:
3,0
Schlafzimmer:
2
Badezimmer:
1
Balkone:
1
Ausstattung
Badewanne
✓
Fliesenboden
✓
Linoleumboden
✓
Fernwärme
✓
Zustand
Baujahr:
1955
Energieeffizienzklasse
D
Energiepass
Energiepass Art:
Bedarf
gültig bis:
07-2028
Verbrauchkennwert:
108.00 kWh/(m²a)
mit Warmwasser
✓
Endenergiebedarf:
0.00 kWh/(m²a)
Primärenergieträger:
Fernwärme
Energieeffizienzklasse:
D
Verwaltung
verfügbar ab
sofort
Objektbeschreibung
Das Wohnhaus überzeugt durch seine zentrale und zugleich ruhige Lage: Verkaufs- und Dienstleistungseinrichtungen sind schnell zu Fuß erreichbar, liegen jedoch ausreichend entfernt, um ein ungestörtes Wohnen zu gewährleisten. Im Umkreis von etwa 500 m befinden sich Bus- und Bahnanschlüsse, ein Markt mit sehr guten Einkaufsmöglichkeiten, eine Bibliothek sowie Ärzte und Apotheken. Der Geiseltalsee selbst ist nur rund einen Kilometer entfernt und unterstreicht den hohen Freizeit- und Erholungswert der Lage.
Ausstattung
Bad mit Badewanne, Balkon, PKW-Stellplatz möglich, wenn verfügbar
Die sanierte 3-Raumwohnung besitzt einen ansprechenden Grundriss und befindet sich im 1. Obergeschoss eines gepflegten Mehrfamilienhauses.
Sie besitzt folgende Ausstattungsmerkmale:
- sofort bezugsfertig
- tapeziert mit Raufasertapete
- schöner Balkon
- Highspeed-Internet (bis zu 1000 Mbit/s) verfügbar
- modernes Tageslichtbad mit Wanne sowie Handtuchheizkörper
- Küche mit Fliesenspiegel
- moderner PVC-Belag in allen Räumen
- PKW-Stellplatz möglich, wenn verfügbar
Gerne stehen wir Ihnen für Fragen und einen Besichtigungstermin zur Verfügung.
Die sanierte 3-Raumwohnung besitzt einen ansprechenden Grundriss und befindet sich im 1. Obergeschoss eines gepflegten Mehrfamilienhauses.
Sie besitzt folgende Ausstattungsmerkmale:
- sofort bezugsfertig
- tapeziert mit Raufasertapete
- schöner Balkon
- Highspeed-Internet (bis zu 1000 Mbit/s) verfügbar
- modernes Tageslichtbad mit Wanne sowie Handtuchheizkörper
- Küche mit Fliesenspiegel
- moderner PVC-Belag in allen Räumen
- PKW-Stellplatz möglich, wenn verfügbar
Gerne stehen wir Ihnen für Fragen und einen Besichtigungstermin zur Verfügung.
Ihr Ansprechpartner
GW Geiseltaler Wohnungsgesellschaft mbH
Eduard-Dörge-Platz 7
06242 Braunsbedra
Deutschland
E-Mail (zentral)
Telefon
034633 9099-99