WILLKOMMEN IM GEISELTAL (10951)
Goethestraße
1 |
06242
Braunsbedra
Deutschland
Braunsbedra
Etage:
1. OG
Etagenanzahl:
3
Kaltmiete:
394,00 €
Warmmiete:
618,00 €
Nebenkosten:
105,00 €
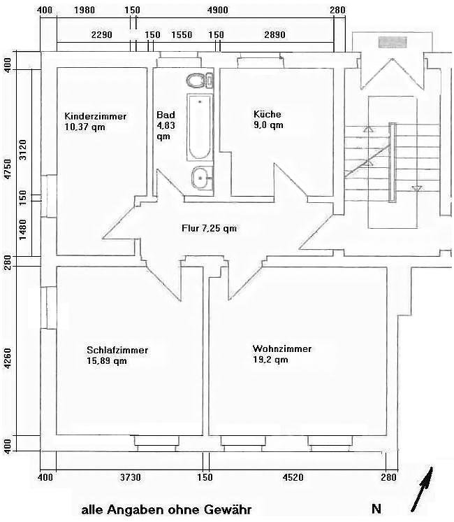
Wohnfläche ca.:
65.56 m²
Zimmer:
3
Schlafzimmer:
2
Badezimmer:
1
Objektinformationen
Kaltmiete:
394,00 €
Warmmiete:
618,00 €
Nebenkosten:
105,00 €
Heizkosten:
119,00 €
Kaution:
788,00 €
Wohnfläche ca.:
65,56 m²
Zimmer:
3,0
Schlafzimmer:
2
Badezimmer:
1
Ausstattung
Badewanne
✓
Fliesenboden
✓
Linoleumboden
✓
Fernwärme
✓
Zustand
Baujahr:
1956
Energieeffizienzklasse
C
Energiepass
Energiepass Art:
Verbrauch
gültig bis:
06-2028
Verbrauchkennwert:
80 kWh/(m²a)
mit Warmwasser
✓
Primärenergieträger:
Fernwärme
Energieeffizienzklasse:
C
Verwaltung
verfügbar ab
-
Objektbeschreibung
Braunsbedra im Geiseltal ist eine attraktive Stadt in Sachsen-Anhalt, die sich durch ihre Lage am Geiseltalsee und ihre vielfältigen Vorzüge auszeichnet:
- Braunsbedra liegt malerisch am Ufer des Geiseltalsees, einem der größten künstlichen Seen Deutschlands. Dieser See bietet nicht nur eine atemberaubende Kulisse, sondern auch zahlreiche Möglichkeiten für Wassersport, Angeln und Erholung.
- Die Umgebung von Braunsbedra ist von grünen Wäldern sowie drei weiteren Seen (Hasse See, Großkaynaer See & Runstedter See) umgeben, die zum Wandern, Radfahren und Picknicken einladen.
- Braunsbedra liegt verkehrsgünstig an der Autobahn A38, was den Zugang zu größeren Städten wie Halle (Saale) und Leipzig erleichtert. Auch öffentliche Verkehrsmittel sind gut ausgebaut.
- Die Stadt bietet eine Vielzahl von Einkaufsmöglichkeiten und Restaurants, um den täglichen Bedarf zu decken und kulinarische Vielfalt zu genießen.
- Braunsbedra verfügt über Kindergärten, Grundschulen und eine weiterführende Schule.
- Braunsbedra liegt malerisch am Ufer des Geiseltalsees, einem der größten künstlichen Seen Deutschlands. Dieser See bietet nicht nur eine atemberaubende Kulisse, sondern auch zahlreiche Möglichkeiten für Wassersport, Angeln und Erholung.
- Die Umgebung von Braunsbedra ist von grünen Wäldern sowie drei weiteren Seen (Hasse See, Großkaynaer See & Runstedter See) umgeben, die zum Wandern, Radfahren und Picknicken einladen.
- Braunsbedra liegt verkehrsgünstig an der Autobahn A38, was den Zugang zu größeren Städten wie Halle (Saale) und Leipzig erleichtert. Auch öffentliche Verkehrsmittel sind gut ausgebaut.
- Die Stadt bietet eine Vielzahl von Einkaufsmöglichkeiten und Restaurants, um den täglichen Bedarf zu decken und kulinarische Vielfalt zu genießen.
- Braunsbedra verfügt über Kindergärten, Grundschulen und eine weiterführende Schule.
Ausstattung
Bad mit Badewanne, PKW-Stellplatz möglich, wenn verfügbar
Diese sanierte 3-Raum-Wohnung befindet sich im 1. Obergeschoss eines gepflegten Mehrfamilienhauses in Braunsbedra im Geiseltal. Sie überzeugt durch ihre helle und freundliche Gestaltung sowie eine moderne Ausstattung:
• Bezug ab 01. Januar 2026
• Wände mit Raufasertapete tapeziert
• Tageslichtbad mit Wanne und Handtuchheizkörper
• Küche mit praktischem Fliesenspiegel
• Moderner PVC-Belag in allen Räumen
• PKW-Stellplatz möglich, wenn verfügbar
Die Wohnung bietet damit beste Voraussetzungen für ein komfortables Zuhause.
Gerne beantworten wir Ihre Fragen und vereinbaren mit Ihnen einen Besichtigungstermin.
Diese sanierte 3-Raum-Wohnung befindet sich im 1. Obergeschoss eines gepflegten Mehrfamilienhauses in Braunsbedra im Geiseltal. Sie überzeugt durch ihre helle und freundliche Gestaltung sowie eine moderne Ausstattung:
• Bezug ab 01. Januar 2026
• Wände mit Raufasertapete tapeziert
• Tageslichtbad mit Wanne und Handtuchheizkörper
• Küche mit praktischem Fliesenspiegel
• Moderner PVC-Belag in allen Räumen
• PKW-Stellplatz möglich, wenn verfügbar
Die Wohnung bietet damit beste Voraussetzungen für ein komfortables Zuhause.
Gerne beantworten wir Ihre Fragen und vereinbaren mit Ihnen einen Besichtigungstermin.
Ihr Ansprechpartner
GW Geiseltaler Wohnungsgesellschaft mbH
Eduard-Dörge-Platz 7
06242 Braunsbedra
Deutschland
E-Mail (zentral)
Telefon
034633 9099-99